RESIDENCIA MP

Tipología: Residencial

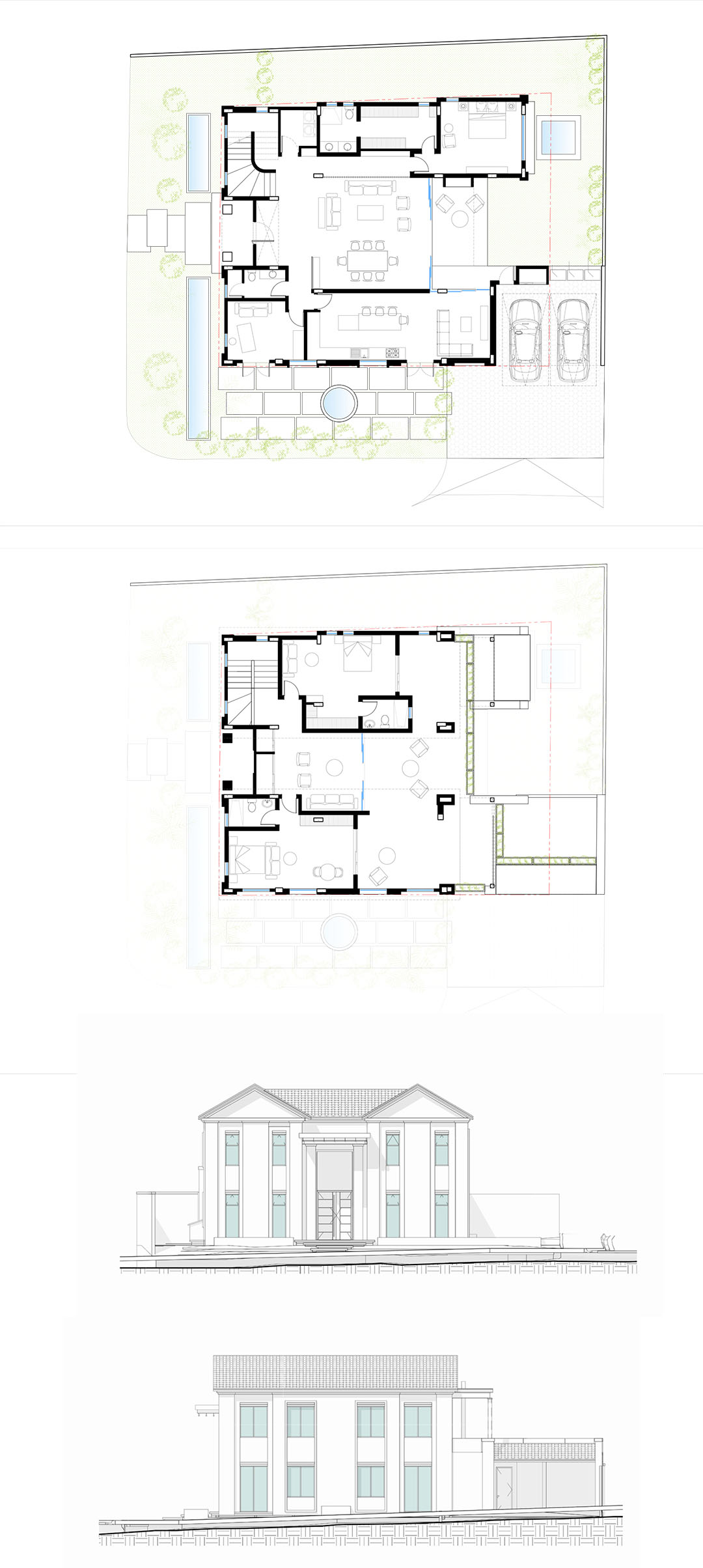
Localización: San Patricio Gardens – Cumbaya

Año: En proceso

Área lote: 578 m²

Área construida: 478 m²

Colaboraciones: Arq. Clara Mendizábal

Proyecto de vivienda unifamiliar que distingue por su estilo y su intención, donde se busca reinterpretar los órdenes y las estructuras de una arquitectura clásica, y trasladarlos hacia una estética contemporánea. Llevar lo tradicional hacia lo moderno, fue una de las máximas en el proceso de diseño. Respetar una simetría, un ritmo, y un orden simple, así como el combinar en estos esfuerzos una materialidad serena, elegante y sobria.

La estrategia arquitectónica idealiza un volumen que parte de figuras geométricas primarias, las cuales son protegidas por una cubierta a dos aguas, con una aguda presencia de ornamentos, detalles y cornisas, para resaltar los componentes de esta arquitectura. La intención en sí tiene un carácter atectónico, donde es dificil interpretar el método y el sistema constructivo, ya que la piel o envoltura del elemento esconde todo el esqueleto y el como se materializa la estructura y la masa.

La visión unificada entre el cliente y el diseño, fue el de llevar a la casa hacia una búsqueda por sensaciones que evoquen la nostalgia, el resaltar al paisaje, el pretender ser elegante, y siendo arriesgado el como acercarse hacia la belleza. A esto se adiciona el comportamiento espacial al interior, donde los espacios sociales y la cocina se vinculan a un porche acogedor y a continuación hacia un patio de dimensión ajustada que pretende  difuminar la noción interior-exterior.