RESIDENCIA MC, QUITO

Tipología: Residencial

Localización: Quito

Año: 2.024

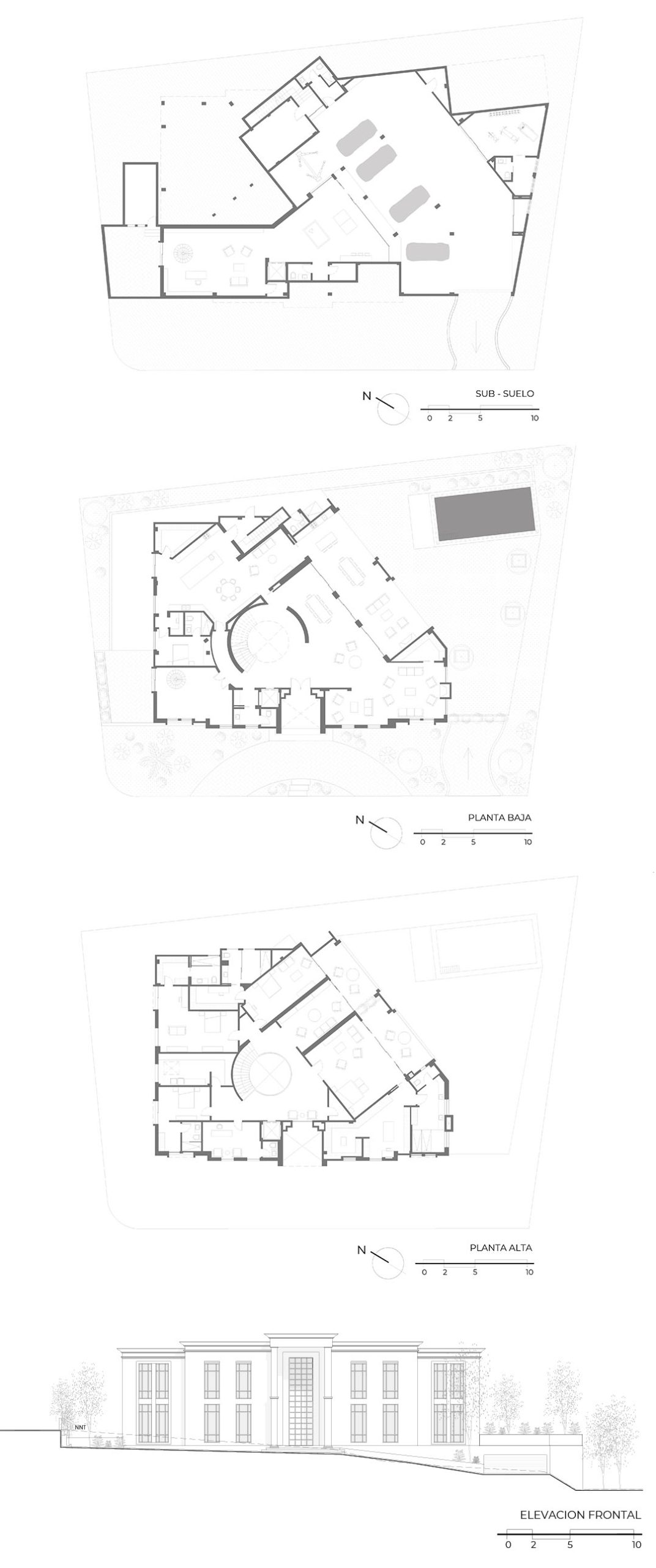
Área lote: 1.370 m²

Área construida: 1.535 m²

Colaboraciones: Arq. Clara Mendizábal

Ubicada sobre un lote privilegiado sobre una colina con una espléndida vista al cerro Ilaló, que además maximiza la vista de 180 grados hacia el valle de Tumbaco y sus alrededores, esta vivienda unifamiliar se inspira en el chalet francés de principios de siglo XX, donde el elemento arquitectónico destaca por la búsqueda de órdenes clásicos como la proporción, el ritmo y la simetría.

Esta arquitectura se define como una reinterpretación moderna de un lenguaje clásico europeo, con volúmenes contemporáneos y una geometría limpia, blanca y pura. La horizontalidad se acentúa con la presencia de unas cornisas con forma «pecho de paloma» y que juegan entre la concavidad y la convexidad de sus partes así como en su dimensión que varía y remarca las diferentes jerarquías de las lineas compositivas.

Con esta propuesta de vivienda de alta gama, desarrollada en dos plantas más subsuelo de automóviles, buscamos que la integración de todos los elementos arquitectónicos derive del lenguaje mismo de la arquitectura donde la elegancia y la sensibilidad sean los hilos conductores de la escena arquitectónica.

Al interior una escalera helicoidal se convierte en el elemento jerárquico más representativo, y el juego de yuxtaposición entra una fachada semicerrada hacia las dos calles, y una fachada muy abierta con balcones, para así remarcar al paisaje circundante como la razón de ser de la organización del espacio.

 

residencia mp miranda casas cumbaya lamina