RESIDENCIA CN

Tipología: Residencial

Localización: Urb. Los Algarrobos – Pillagua

Año: 2018

Área lote: 1.126 m²

Área construida: 702 m²

Colaboraciones: Arq. Clara Mendizábal

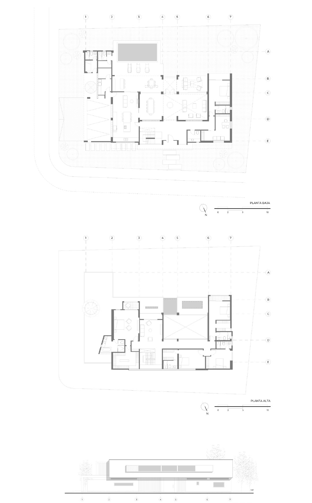
Ubicada en medio de un valle caluroso marcado por la exuberante vegetación existente, esta vivienda unifamiliar evoca los principios de la arquitectura moderna, buscando ser auténtica en su expresión material, y a la vez elegante y sobria.

La estrategia arquitectónica niega una fachada con ventana corrida hacia la calle, y abre toda la vista y la función de la casa hacia el interior del lote, relacionando el volumen con el porche cubierto, la piscina y el jardín privado.

Los espacios sociales y la cocina se vinculan con este porche mediante la maximización de las aperturas entre ellos, logrando difuminar la noción interior-exterior.

El espacio jerárquico interior se marca en la sala principal con el uso de la doble altura, y la correcta implementación del corredor hacia los espacios privados alrededor de este gran vacío.