MILLECENTO RESIDENCIAS

Tipología: Residencial

Localización: Tumbaco

Año: 2018

Área lote: 3.400 m²

Área construida: 2.500 m²

Proyecto inmobiliario desarrollado por nuestra empresa desde la Conceptualización, la Planificación, la Construcción, y la Gerencia.
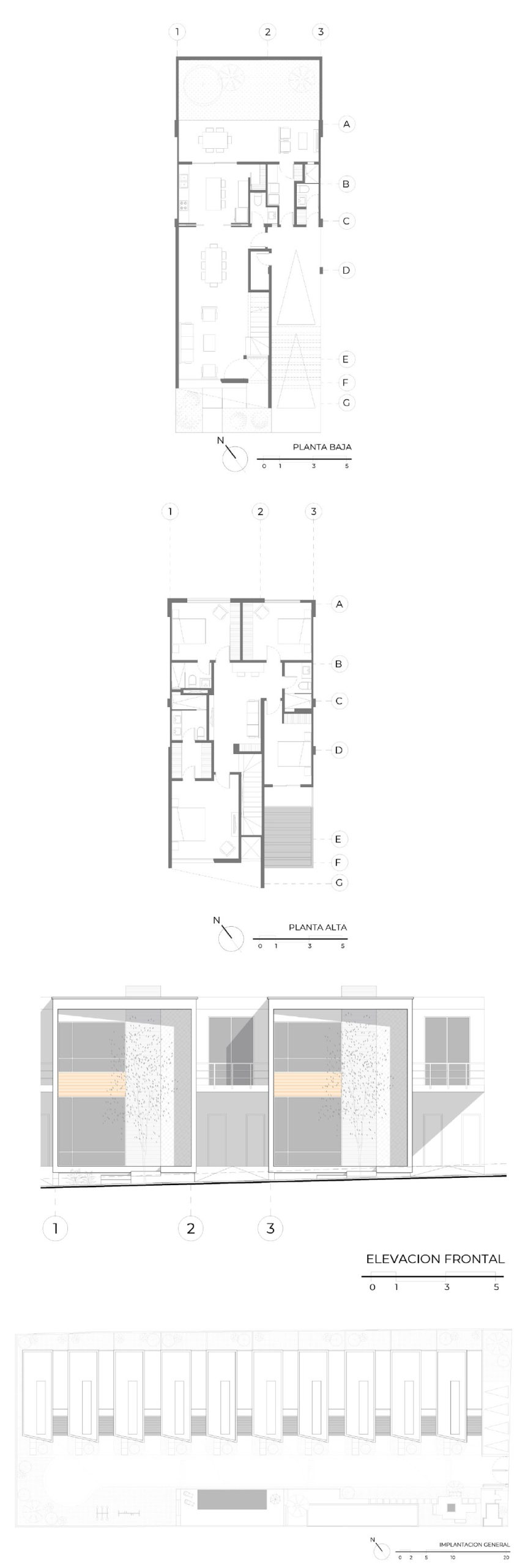
Aborda 10 casas unifamiliares de 4 dormitorios las cuales buscan en lo simple del lenguaje arquitectónico y en el correcto uso de los materiales, alcanzar el bienestar del usuario y la elegancia estética.

Se entiende a la calle como un elemento urbano interno que amplia el límite de cada casa e impulsa el encuentro social, ya que a la vez se incorpora el espacio comunal húmedo, seco, y saludable, paralelo y adyacente a la volumetría de las casas, enfatizando así el contacto de los residentes en este lugar.

La intervención en el paisaje también aporta belleza, ya que se mantuvo la mayor cantidad de árboles preexistentes, y se incorporaron otros buscando armonía entre lo construido y lo verde, tratando así de minimizar la presencia del volumen y la masa, mimetizando así ambos componentes, y buscando siempre orientar la intervención para priorizar las mejores visuales hacia el cerro Ilaló y hacia la silueta de la gran ciudad.

Por último distinguir el uso de materiales en su estado puro como el hormigón enduelado con machimbre, el acero oxidado, la simulación de madera en melamina y porcelanato español, dando como resultado un mix cromático tranquilo y sereno.